Tattenhall Online Logo Link
Tattenhall Business Alliance
Sponsored by the Parish Council & CWaC

Planning application for Gifford Lea Phase 4.

27th August 2022 @ 6:06am – by Webteam
Back home > News > Parish Council meeting 5th Sept.
923a125b75814d7b8d9e7fe2013f5a18

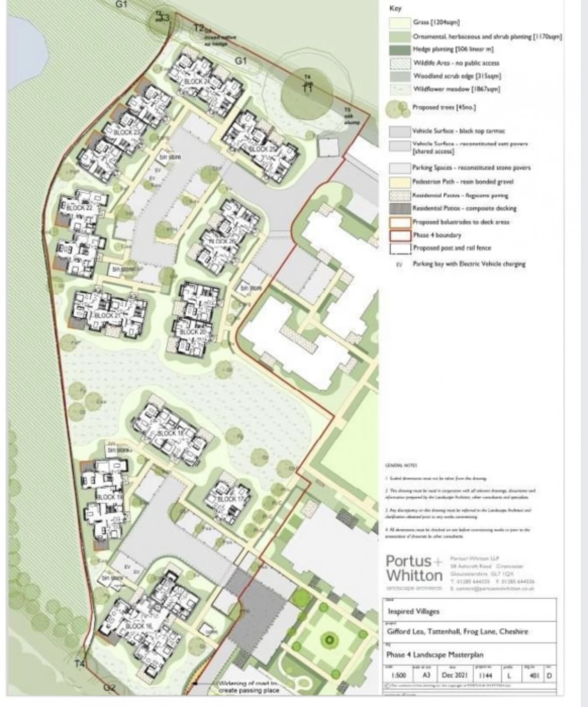
Extra Care Units for Gifford Lea

We have been notified of changes to application 22/00194/FUL, Full planning for 27 Extra Care Units with associated access, parking, landscaping, ecological enhancements & other works at Gifford Lea Retirement Village, Frog Lane, Tattenhall.

The deadline to comment to CW&C on the amendments is the 5th September 2022.

The application details can be found at https://pa.cheshirewestandchester.gov.uk/online-applications/applicationDetails.do?activeTab=documents&keyVal=R5YSVVTEITI00

The Parish Council will agree comments to be submitted at its meeting on the 5th September (having had an extension from CW^C to submit our observations)

Get In Touch

Tattenhall Online is powered by our active community.

Please send us your news and views using the button below:

Village Map

© 2015-2025 Tattenhall Business Alliance
Community website for the UK village of Tattenhall near Chester