Tattenhall Online Logo Link
Tattenhall Business Alliance
Sponsored by the Parish Council & CWaC

Taylor Wimpey Chester Road Development

11th August 2025 @ 6:06am – by Parish Council
Back home > News > Make sure you have your say
taylor wimpey 01taylor wimpey 02

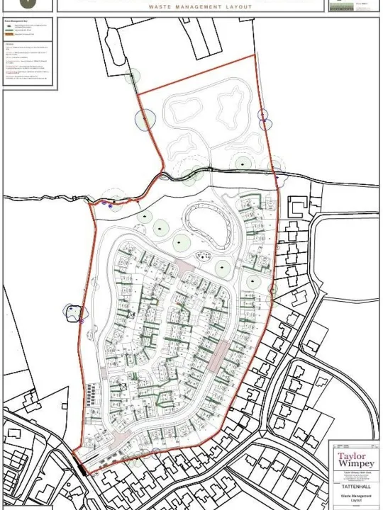
The Parish Council have been officially notified of planning application 25/02070/FUL, Erection of 110 dwellings, provision of associated access and infrastructure works including roads, drainage infrastructure, car parking, public open space, landscaping and associated works on land at Chester Road, Tattenhall.

The deadline for comments is 29th August 2025.

The application details can be found online at https://pa.cheshirewestandchester.gov.uk/online-applications/applicationDetails.do?activeTab=documents&keyVal=SYVRCDTEIUK00

CLICK HERE

The Parish Council will confirm the date when they will meet to discuss this application soon!

WeLoveTattenhall

Get In Touch

Tattenhall Online is powered by our active community.

Please send us your news and views using the button below:

Village Map

© 2015-2025 Tattenhall Business Alliance
Community website for the UK village of Tattenhall near Chester